How to Read Isometric Piping Drawings Pdf
In our last commodity of What is Piping, we gave you lot a summarized understanding of Pipe Isometric Drawings. Here we will focus on getting familiar with Piping isometrics. From understanding what Piping Isometric drawing is to Obtaining noesis of Reading it in the most appropriate and easy way. For reading whatsoever Pipe isometric cartoon you must have to familiar with these 04 important things:
- Co-ordinate System
- Pipe Symbols
- Understanding of Directions
- Pythagoras Theorem (For Rolling movement of Pipe)
Permit's start focus to know what is a piping Isometric? Which will help you with the fabrication and Erection of the pipe in its proper location.
More to Read: What Is RF Pad? How To Summate Reinforcement pad dimensions?
What is Piping Isometric cartoon?

After establishing a 3-D model in PDMS, SP3D, or whatever other software, Piping designers have to communicate the aforementioned information to the person who is executing that pipage job either in the thousand for fabrication or in the field for Erection/Construction. The conveyed data must exist plenty for the execution person. Then that, they can understand well and become a vision of the fabrication of Spools and how the piping is continued with other equipment or special items.
Here comes the function of Pipage Isometric cartoon. This kind of drawing helps a designer to transfer his vision of piping connections to the team executing construction projects. Piping isometric is a representation of a single pipe line in a process plant with verbal dimensions and Bill of Material (BOM). It is the virtually of import deliverable of any project where piping plays a vital function.
By Definition, Isometrics drawings are a graphic representation of a 3D routed line in a 2d plane that combines peak, length of pipe in a single drawing with a 30º angle on both sides from horizontal.

The principal body of a pipe Isometric drawing is consist of:
- Line Number
- Flow management
- Piping components
- Weld articulation type and its location
- Continuation isometric number
- Co-ordinates and Peak of Pipage
- Connection details with equipment
Section of Left or right of Pipe Isometric cartoon includes:
- Piping component description
- Material lawmaking
- Nominal size of components
- Quantity of components
- Whether a field or shop item
Lesser Department of Isometric Drawing contains:
- Project proper noun, Client, PMC ( Project management consultancy), and Contractor details
- Pipe line details i.e. Line number, Line size, fluid code, Blueprint, and operating temperature, and Pressure
- Piping class, Inch-Meter, Inch-Dia
- Special notes created for any drawing. i.e. Stress criticality, Heat expansion, etc
Calculations for Piping data from Isometric drawing
- Inch Meter: Length of piping (in meter) x Size of piping ( in inch )
- Inch Dia: Size of Pipe joint ( in inch) ten No, of Joints
- Insulation Area (in thousand²): [π(Pipe OD+ insulation thickness)] (all in meter) 10 Length of Pipe ( in meter )
- Weight of Pipage:π ten diameter of the pipage (in m) x length (in m) ten thickness (in mm) x density of pipe material.
Density of CS = 7.85 g/cm3 - The volume of Water required for hydro testing: π x {Pipage ID (in meter)}² x Length of Pipe
More than Resource: Heat Tracing in Pipage: Types, Working, Use, Installation, Comparison (Steam Tracing vs Electrical Tracing)
Features of Piping Isometric Drawings
Isometric cartoon is a 2D drawing that enables a person to become a vision of a 3D view of a line. Some important characteristic of whatsoever piping isometric is as follows:
- All isometric drawings are prepared irrespective of Line length and size as well as piping components merely this gives the verbal dimension of everything mentioned in the cartoon.
- The line diagram shown in the isometric drawing tin't define line size. Actual line size can exist obtained from BOM or NB (nominal bore) mention in isometric.
- This can also correspond a line which not traveling in the verbal N, south, east, west, upward, or Down direction.
- This tin can bespeak the type of joints to be done amongst piping components that will be used.
- This can give y'all fluid flow direction, Equipment connection details, and a special item attached to it in a single plain.
More Resource: An Overview on Different types of piping drawing used in Piping Projection Construction
The coordinate organisation of Piping Isometric
If you lot are a science student then I am certain yous have learned about coordinate systems. Yes…!! the aforementioned coordinate arrangement which works on three Centrality. i.e. X-axis, Y-centrality, Z-centrality. To acquire nigh coordinate systems you have to only modify your concept up to some extent.

Here y'all have to go on 03 important points in your heed always while reading Piping isometrics:
- Value of Northing or Easting ever increases while a pipeline moves in that direction and Vice-versa. For Case: Consider at some bespeak Northing of Pipage'due south face is N 524.196 and the pipage traveled towards the due south by 10.94m so the current coordinate of that signal will be, 524.196-ten.94=513.256 (Value of Norting later line movement).
- When Line moves in E or West direction just, Value of Northing doesn't change.
- If the Line is moving in an upwards or down direction then the Northing or Easting of that point doesn't alter. There will be an effect only on the value of Height.

Now have a quiz to check what yous accept understood from this section
Features of Pipe coordinate system
As nosotros already know, Pipe isometric cartoon is fatigued to scale. That's why calculating diverse data from an Isometric coordinate organization is required. The Isometric is commonly referred to as oriented towards the N direction marked with an arrow in the peak correct corner. With assistance of the coordinate arrangement in Piping isometric cartoon,
- Length of Pipe can exist calculated by subtracting Two Northing, 2 eastings, or Two elevation values.
- The coordinate system helps to gain a vision as isometric drawings are not on the scale.
- This helps to go Northing or Easting bespeak of whatever point in between the line.
- Tin calculate the exact location of the piping line in a unit or Pipe rack.
- Proceeds information about the equipment nozzle to which pipe is going to exist connected.
Piping Symbols for Isometric Drawings
Knowing legends and symbols that are universal for reading a Pipage isometric drawing is much helpful to proceeds info about the Pipage material or piping fittings that are going to be used for fabrication or construction work. Knowledge of symbolic representation of piping is helpful to gain quick knowledge with observing BOM. Yeah, you will still need to read BOM to know the Pressure rating and MOC of pipage fittings and components.
Characteristic of Piping Drawing symbols
- This gives you a quick detail about the type of joint, ie. Buttweld, socket weld, or Threaded join between the fitting.
- Pipage symbols are a quick reference to know nearly the type of plumbing equipment and component to exist used.
- This gives you lot knowledge of the blazon of Valves to be in-line with piping isometric.
- Whatsoever musical instrument fastened to a piping system can be hands known with reference to pipage symbols.
- With assist of piping symbols, we tin know about the equipment connected with piping symbols.
Piping Symbol chart for Piping Isometric or P&ID
Pipage Fittings Symbols

Valve Symbols

Pipage Flange Symbols

Miscellaneous Piping Symbols

Click hither to Download Pipage Symbol Pdf
How to Read Pipage Isometric Drawing?
An isometric drawing is drawn with a single line. This unmarried line symbolizes the center of the pipe. And any dimensions shown to it is always center to center of the system. To read Piping isometric cartoon y'all must know the post-obit things:
- Pipe Isometric drawing dimensions are always from center to eye of pipe.
- Pipage size is e'er written at any connecting betoken of Isometric.
- Co-ordinate and Elevation of Pipe is written at connecting points of Piping isometric drawing.
- Cloth description for Pipe is described in Piping isoemtric cartoon on superlative right corner.
- Rolling in Isometric drawings are shown with Hatches.
- In instance of Rolling of pipage, Its conventional management not remains same to N, Due south, Due east or West.
- Yous must learn symbols of piping components and fittings to know required cloth for pipage organization.
- In summit Left corner of Isometric considered direction is Indiacated. Normally Information technology is considered Northward.
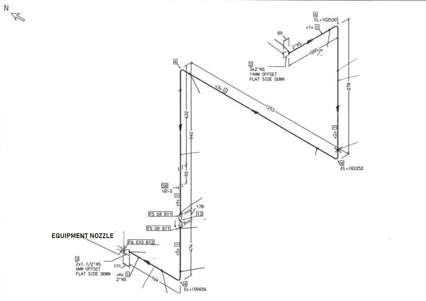
To fully understand and read thoroughly a pipe isometric cartoon y'all need to go skills of imagination too. Permit'south take an example:

From the higher up sample isometric, you can easily observe the following:
- The pipage system starts with Equipment.
- Piping line is connected with the equipment via a Socket weld flange of size ane.v″ with an eccentric reducer of size two″x1.five″.
- After equipment line travel towards Due south direction and travels in upwards management.
- A flanged end gate valve is there for which handle direction is towards the south.
- Further routing of Line is towards vertical upward >> Travel towards s >> Travels vertical upwards >> moves towards west and end with 3″x2″ eccentric reducer.
Sometimes Piping doesn't travel towards the exact East, West, North, or Due south direction. In that case, a Rolling triangle is shown in the isometric drawing which helps us to get a vision of the travel direction of the pipe.
A piping rolling triangle can exist of 02 types:
- Horizontal rolling triangle:In this type of rolling pipe take diversion in its management with respect to a verticle plane.
Hither pipage takes a diversion from E to N in the horizontal plane with respect to a verticle airplane. - Vertical Rolling triangle:In this blazon of rolling pipage takes diversion with respect to the horizontal airplane.
In this example, the pipe is moving at some bending from a horizontal aeroplane in the north direction.
Note: A cloud symbol in pipe isometric drawing indicate revision in that Iso.
Rolling angle with respect to any plane can exist obtained with help of the Pythagoras theorem.

Example of Rolling angle calculation:
Verticle rolling angle from the sample image tin can be obtained as:

Conclusion
From the in a higher place article on learning almost piping isometric drawing we can conclude with the post-obit:
- Isometrics are second representations of the 3D pipe line.
- Pipage isometric gives u.s.a. information about the Direction of fluid period, MOC, BOM, Weld joint, Pipage plumbing fixtures, and components, Line no. , Connecting line no. and many more.
- The coordination system for pipe is base of operations to calculate pipe length and identify the verbal location of the pipage system.
- Piping symbols are important to read drawings as information technology gives quick reference most fittings, joint types, valve types and whatever other special component to be used.
- When the Pipe doesn't motility in the exact North, S, East, or West direction then the movement is shown with assist of rolling angles.
- The rolling angle tin can be calculated using the Pythagoras theorem and trigonometric ratio.
schillerminne1939.blogspot.com
Source: https://www.allaboutpiping.com/how-to-read-piping-isometric-drawing/
0 Response to "How to Read Isometric Piping Drawings Pdf"
إرسال تعليق